
#6025 86 Street
Courtesy of Drew Joslin of NAI Commercial Real Estate Inc
- 1972
- For Sale
- MLS43691084
MLS 43691084
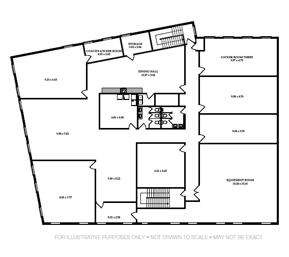
8, 062 sq.ft.± available for sublease in an easily accessible south side location with exposure to Wagner Road and signage opportunities. Low operating costs make it suitable for sports/fitness facilities, classroom or group space, and collaborative office users.Other Property Types: OfficeSubject Space Width: 20Ownership Interest: PrivateTitle to Land: LeaseholdSeller Rights: NoAppointment Name: Drew JoslinAppointment Phone: 780-540-9100Lease Operating Costs Included: Easily accessible south side location. Exposure to Wagner Road. Signage opportunities. Low operating costs. Ideal users include sports/fitness facilities, classroom or group space, collaborative office users.Paragon Listing ID: E4420782
Land & Building Details
Building Features
| Year | 1972 |
|---|
Heating & Cooling
| Fireplace Included | No Fireplace |
|---|
![]() |
| ||||
| $ | #43691084 | 6025 86 Street Edmonton Alberta | |||
| |||||
| Brochure 8, 062 sq.ft.± available for sublease in an easily accessible south side location with exposure to Wagner Road and signage opportunities. Low operating costs make it suitable for sports/fitness facilities, classroom or group space, and collaborative office users.Other Property Types: OfficeSubject Space Width: 20Ownership Interest: PrivateTitle to Land: LeaseholdSeller Rights: NoAppointment Name: Drew JoslinAppointment Phone: 780-540-9100Lease Operating Costs Included: Easily accessible south side location. Exposure to Wagner Road. Signage opportunities. Low operating costs. Ideal users include sports/fitness facilities, classroom or group space, collaborative office users.Paragon Listing ID: E4420782 | |||||
| Full Listing | https://www.macintoshgroup.ca/listings/43691084/6025-86-street-edmonton-alberta/ | ||||
Found Your New Dream Home?
Send us a note to schedule a viewing or give us a call under (780) 464-0075.
